Fondé par Pavel Gerasimov et Aleksei Ivanov, deux jeunes architectes d’intérieur moscovites, le studio Geometrium a imaginé cet intérieur pour un célibataire moscovite. 43 mètres carrés spécialement pensés pour un personne seule mais qui garde à l’esprit que cette situation pourrait ne pas durer. Les architectes ont donc envisagé l’appartement pour l’adapter facilement pour en faire un nid douillet pour deux. Ce que nous avons aimé et nos conseils déco juste après la visite en images :
Le projet :
Ce que nous avons aimé :
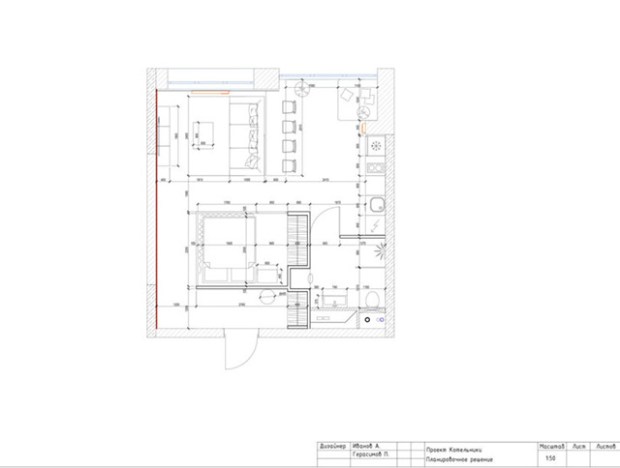
Cet appartement de Moscou est une superbe rénovation pensée pour un jeune homme célibataire. Puisque cette situation n’est sans doute pas amenée à perdurer, les architectes ont repensé le plan de l’appartement en incluant une nouvelle zone de couchage dans la grande pièce à vivre. Néanmoins, cette chambre n’était pas totalement ouverte puisqu’elle vient se lover contre le mur du couloir séparant le salon et la salle de bain. Cette astuce à permis de conserver un maximum d’espace, tout en offrant de l’intimité en dissimulant (ou non) le litre au centre d’une verrière.
Les architectes ont opté pour une décoration moderne, semblable à celle d’un loft industriel, en incorporant notamment des tuiles d’ardoise naturelles dans l’intérieur. De même, ils placèrent sur les murs, une brique en béton qui imite les murs de briques anciens.
Enfin, cette idée n’est pas novatrice mais ici bien réalisée avec le sommier du lit fabriqué en anciennes palettes. Un autre élément de décoration retient ici notre attention, il s’agit des nombreux cadres disposés à même le sol.
Conseils et astuces déco :
- Dans un projet de rénovation, il faut penser plus loin qu’à l’instant T. Penser à la fin du célibat pour un jeune adulte, l’arrivée d’un enfant pour un jeune couple…
- Dans les petites surfaces, créer des séparations vitrée permet de ne pas obstruer les vues et ainsi donner une plus grande sensation d’espace.
- Pour une décoration de style industriel, si le métal et la brique sont très connues, pensez aussi à incorporer de l’ardoise, élégante, facile d’entretien et idéale pour les cuisines et salles-de-bains.
Retrouvez plus de projets d’appartements en visitant nos archives.
