Bien que le printemps soit de retour, nous vous proposons aujourd’hui un voyage au cœur de la forêt canadienne pour découvrir « la Pointe », une cabane contemporaine nichée dans les bois. Conçue pour le Parc régional du Poisson Blanc situé au nord d’Ottawa, cette habitation, fruit du travail des architectes du studio l’Abri, étonne par sa géométrie triangulaire et ses espaces de vie résolument tournés vers la nature. Les matériaux naturels dialoguent avec les bois grâce à d’immenses baies vitrées. Ce que nous avons aimé et nos conseils déco juste après la visite en images :
Le projet :

Photographies : © Jack Jérôme et Ronny Lebrun
Ce que nous avons aimé :
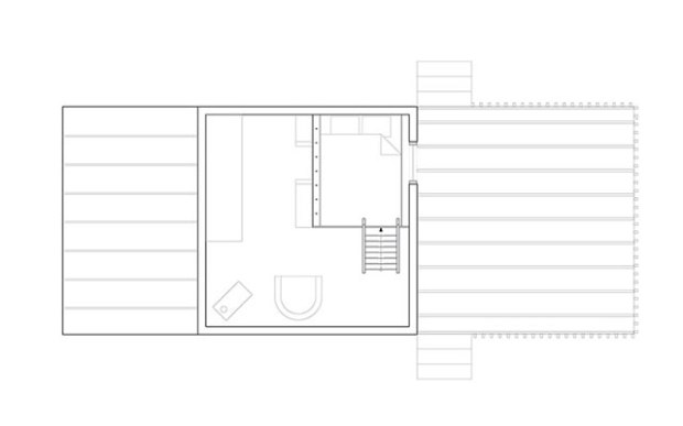
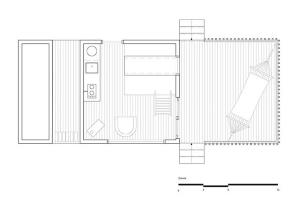
Dans ce parc classé, les architectes ont cherché avant tout à livrer une réinterprétation du style des cabanes en Amérique du Nord dans les années 1950. Un objet simple, presque signalétique, qui offre des espaces fonctionnels et capable d’accueillir deux à quatre personnes. Les espaces intérieurs sont sobres et baignés de lumière naturelle, comme si la nature devenait le principal élément de décoration.
Au rez-de-chaussée, une petite cuisine, un poêle à bois et une table à manger et ses bancs encastrés constituent les seuls éléments de mobilier. On notera toutefois deux originalités de taille, la chaise suspendue qui invite à se balancer doucement en admirant le paysage et la table qui se transforme en… lit d’appoint ! Une échelle inclinée mène à la petite mezzanine qui abrite le couchage principal.
Le point focal du refuge est la grande baie vitrée qui offre une vue ininterrompue sur la forêt et le lac en contrebas. Appuyée contre le volume principal de la cabane, la terrasse couverte devient le lieu de vie principal lorsque les conditions météo le permettent. Intemporel, le revêtement d’acier couplé aux planches de bois de cèdre se retrouve aussi bien à l’extérieur qu’à l’intérieur pour une approche très élégante qui se patinera avec le temps.
Conseils et astuces déco :
- Pour créer une unité, n’hésitez pas à décliner une même palette de matériaux à l’intérieur et à l’extérieur.
- Utilisez l’extérieur comme un élément de décoration en créant un maximum d’ouvertures.
Et vous, qu’en pensez-vous ?
Des idées, des remarques, des commentaires… N’hésitez à pas à nous en faire part! Pour consulter les autres articles de ce blog dédié à la décoration et au design d’espace, vous pouvez utiliser les catégories ou les mots clés indiqués ci-dessous.
Retrouvez plus de projets de maisons en visitant nos archives.