Le studio d’architecture et d’architecture d’intérieur australien Sans Arc a récemment réalisé une extension pour une maison dans la ville de Torrensville. Essentiellement réalisé en gypse, ce nouveau volume se déploie en utilisant de nombreuses arches pour rappeler le style architecturale Art-Déco. Un espace coloré et joyeux où la lumière tient un rôle prépondérant pour exposer la large collection d’objets en céramique et en verre de ses propriétaires. Ce que nous avons aimé et nos conseils déco juste après la visite en images :
Le projet :
Photographies : © Tash McCammon
Ce que nous avons aimé :
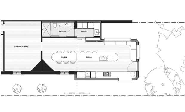
La chose qui nous semble la plus intéressante dans ce projet réside dans la connexion entre l’ancien et l’extension. La résidence existante abritait déjà une salle à manger dans la pièce jouxtant l’extension. Après avoir ouvert le mur, les architectes ont installés une immense table qui s’inscrit dans le prolongement de l’ilot de cuisine central. Deux éléments en terrazzo rose pâle qui créent une connexion très intéressante, d’une part entre la nouvelle cuisine et la salle-à-manger, mais aussi entre les deux constructions.
C’est un espace ludique et lumineux où les clients peuvent cuisiner, se divertir et se détendre. Dans l’angle de la nouvelle pièce, sous deux fenêtres en arche, les décorateurs ont installé une banquette d’angle afin de définir une nouvelle zone. Un petit coin où profiter du soleil et se détendre.
Cette extension se présente comme une parenthèse dans le reste de l’habitation, très lumineuse, notamment grâce aux nombreuses ouvertures et aux luminaires de laiton sphériques et suspendus, qui rappellent le style Art-Déco.
Le nouveau volume de 35 m2, a aussi permis aux architectes de doubler la surface de la salle de bain originale et d’y ajouter une buanderie. Dans ces espaces, les architectes ont percé l’enveloppe de l’extension pour y créer des puits de lumière qui apportent un important flux de lumière naturelle.
Conseils et astuces déco :
- Lorsque vous réalisez une extension, il faut trouver des astuces pour connecter les espaces. Ici, le rappel du terrazzo entre le plan de cuisine et la table à manger est idéal.
- Et si vous utilisiez les espaces sous les fenêtres pour y créer des zones de détente pour profiter de la lumière ?
- Pour une inspiration très Art-Déco, foncez sur les luminaires en laiton à diffuseurs sphériques.
Et vous, qu’en pensez-vous ?
Des idées, des remarques, des commentaires… N’hésitez à pas à nous en faire part!
Pour consulter les autres articles de ce blog dédié à la décoration et au design d’espace, vous pouvez utiliser les catégories ou les mots clés indiqués ci-dessous.
Retrouvez plus de projets de maisons en visitant nos archives.
