Direction le quartier Cumbaya de Quito, en Équateur pour découvrir la déco du restaurant Happy Panda. Un lieu récemment imaginé par le duo d’architectes et de décorateurs formé de Nancy Hou et Josh de Sousa. Fondateurs de l’agence Hou de Sousa LLC, basée à New-York, les deux décorateurs proposent dans l’aménagement intérieur de ce restaurant des solutions ludiques et colorées qui savent tirer parti de l’architecture du lieu, notamment de la double-hauteur sous plafond. Ce que nous avons aimé et nos conseils déco juste après la visite en images :
Le projet :

Ce que nous avons aimé :
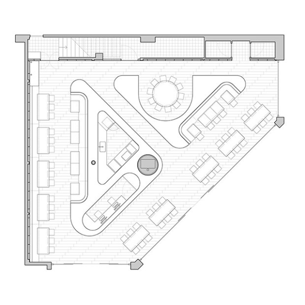
Voici une intervention très originale et réussie qui tire habilement profit de l’espace à double-hauteur du restaurant. La salle est organisée autour de grands îlots triangulaires avec des banquettes intégrées. Globalement, c’est tout le projet qui s’articule avec des formes géométriques simples : des cubes, des cylindres, des triangles… Le plan du restaurant lui-même est triangulaire. Un gros travail a été effectué au niveau du plafond, notamment avec l’ajout d’une multitude de lustres colorés et ludiques.
Des matériaux industriels simples ont été déployés tout au long du projet. De l’acier ondulé enveloppe la mezzanine tandis qu’un ensemble de panneaux de contreplaqué vient délimiter les espaces. Les lustres se composent de tubes d’acier soudés et de cordon utilisés pour réaliser des parachutes. L’objectif principal était de créer une atmosphère légère et aérée avec des notes de couleur rafraîchissantes, et le résultat est très réussi. Ces couleurs viennent subtilement donner du peps au lieu qui sait aussi rester sobre, notamment avec ses planchers de chêne blanc et ses grands comptoirs en quartz, très élégants.
Conseils et astuces déco :
Lorsque vous aménagez des espaces à double-hauteur : pensez à jouer avec le monumental, des pièces démesurées, de la couleur vive !
Et vous, qu’en pensez-vous ?
Des idées, des remarques, des commentaires… N’hésitez à pas à nous en faire part! Pour consulter les autres articles de ce blog dédié à la décoration et au design d’espace, vous pouvez utiliser les catégories ou les mots clés indiqués ci-dessous.
Retrouvez plus de projets et de conseils déco en visitant notre rubrique consacrée aux restaurants.