Le studio d’architecture chinois, RIGI Design, a transformé une maison des années 50 à Shanghai pour y créer un espace familial moderne et baigné de lumière. Une approche de la décoration minimale et astucieuse, avec en point d’orgue un immense mur modulable pour s’adapter aux besoins du moment. Ce que nous avons aimé et nos conseils déco juste après la visite en images :
Le projet :

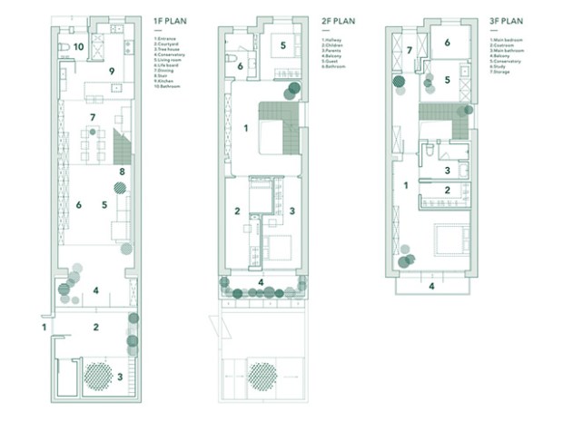
Ce projet de rénovation se devrait de répondre aux besoins d’une famille composée de jeunes enfants. Une maison blanche qui s’élève sur trois étages et possède une architecture typique de l’époque dans laquelle elle a été construite.
Photographies : © Fangfang Tian
Ce que nous avons aimé :
En premier lieu, c’est la gestion de la lumière qui nous séduit dans ce projet. Pour que la lumière naturelle s’invite au cœur du bâtiment, un nouvel escalier ouvert a été installé et permet une circulation lumineuse du toit jusqu’au sol. Pour permettre cela, un grand puits de lumière a été percé pour surplomber la structure métallique et minimale. Une autre astuce des architectes a été de percer les plaques de métal qui forment les marche, pour accentuer la filtration de la lumière dans toute l’habitation.
Concernant l’aménagement du rez-de-chaussée, tous les murs ont été supprimés pour créer un espace totalement ouvert comprenant la cuisine, le salon et la salle à manger. Venons en à la meilleure idée (et la plus facilement reproductible chez vous ou dans vos projets) de cette rénovation. Le studio a conçu un immense mur modulaire appelé le « panneau de vie ». Une plaque de contreplaqué percée de trous qui suivent un modèle de grille, permet d’y fixer étagères et accessoires tout en offrant la possibilité d’être facilement placées et réorganisées pour répondre aux besoins changeants de la famille. Sous ce panneau se dressent de petits caissons de métal et bois qui longent toute la surface du mur. Les murs blancs sont très légèrement contrastés avec un gris clair utilisé sur la partie inférieur du mur du salon. Une bonne idée qui apporte une touche graphique tout en sachant se faire discrète.
L’entrée de la maison se fit par un patio créé par les architectes pour faire la liaison avec l’extérieur. Végétalisé et moderne avec son cadre noir, il propose une transition douce entre le dehors et le dedans.
Partout dans cette maison, on retrouve la même palette de couleur, bois clair et deux tons blancs et gris sont utilisés, avec des accents pastels dans les accessoires s’invitant par touche.
Conseils et astuces déco :
- L’idée principale à reprendre dans cette habitation est la création de ce mur à vivre, simple, peu onéreux, et personnalisable à l’extrême !
- La zone de l’escalier est une source de créativité importante et ne répond pas qu’à des besoins fonctionnels. Ici, elle est un élément central de cette rénovation, puisque c’est grâce à elle que la lumière circule.
- L’idée d’un mur bicolore qui va décliner deux teintes très proches permet d’ajouter une touche de dynamisme à son intérieur sans toutefois être trop marquée. Une belle astuce simple à reproduire !
Retrouvez plus de projets de maisons en visitant nos archives.
Rien à dire. Ils sont doués. J’imagine les ressources qu’il a fallu déployer pour arriver à ce résultat.