A Valence, le studio d’architecture et de design Roberto Di Donato a effectué la rénovation d’un appartement dans un immeuble datant du début du XX ème siècle. Un travail qui parvient à sublimer le charme de l’ancien en y ajoutant quelques touches de modernité sans jamais le dénaturer. De belles hauteurs sous plafond, des idées déco très astucieuses, un très beau projet de rénovation que nous allons vous faire découvrir aujourd’hui. Ce que nous avons aimé et nos conseils déco juste après la visite en images :
Le projet :

Photographies : © Joao Morgado
Ce que nous avons aimé :
Totalement laissé à l’abandon dans un immeuble classé du XX ème siècle, cet appartement a subit une rénovation tout en retenue et au caractère affirmé. L’espace totalement vide et à nu, a permis aux architecte de déceler tout le potentiel du lieu pour proposer une intervention ambitieuse et respectueuse de l’existant.
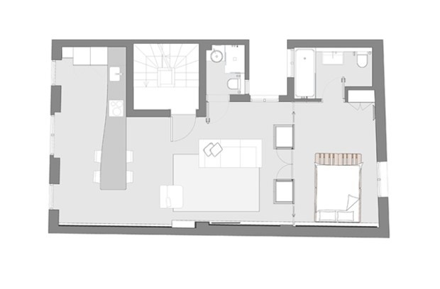
Les spécificités de l’original sont ici sublimées par des espaces fluides qui facilitent un style de vie contemporain. Pour ce faire les architectes ont utilisés des cloisons pivotantes qui permettent de configurer l’espace selon le moment de la journée. Totalement ouvertes, elle favorisent la circulation lumineuse et accentuent l’impression de profondeur. Fermées, elle permettent l’intimité des occupants. La séparation entre les zones de nuit et de jour est marquée par deux éléments verticaux en chêne, semblables à des colonnes, dissimulant de grands placards et qui intègrent trois séries de portes qui permettent de générer les différents niveaux d’intimité.
La hauteur sous plafond occupe aussi une place prépondérante dans le projet. Rénovée et laissée à nu, la charpente est entièrement visible. Le projet n’inclut aucun élément ne s’élevant jusqu’au plafond, laissant sa texture totalement apparente.
On apprécie aussi le choix des architectes concernant l’orientation des éléments. Les différentes interventions s’alternent verticalement (les colonnes de bois, les grands rideaux plongeant, la petite échelle) et horizontalement (le grand plan de travail de pierre de la cuisine, la petite étagère blanche longeant le mur de pierre laissé brut). Avec un budget limité, ce projet parvient à inventer un langage contemporain qui joue avec les texture et les matériaux de l’ancien.
Conseils et astuces déco :
- Dans le cadre d’une rénovation, toujours penser à ce qui peut être conservé
- Ne pas créer d’intervention allant jusqu’au plafond permet de maximiser le sentiment d’espace
- Jouer avec les lignes, alterner les éléments horizontaux et verticaux. Cela permet de rythmer l’espace
Retrouvez plus de projets d’appartements en visitant nos archives.