Les néerlandais de Standard Studio sont un studio de design multidisciplinaire basé à Amsterdam. Avec une équipe composée de d’architectes, d’architectes d’intérieur, de graphistes et de stylistes spécialisés dans les environnements de marque, ils viennent de transformer l’immeuble de bureaux Hermes City Plaza en un immeuble résidentiel de 218 appartements d’étudiants. Un véritable défi puisqu’ils devaient intégrer dans ces studios de 18m² tout le confort de vie : douche, cuisine, table à manger, bureau, canapé, lit et beaucoup d’espace de stockage. Ce que nous avons aimé et nos conseils déco juste après la visite en images :
Le projet :

Photographies : © Wouter van der Sar
Ce que nous avons aimé :
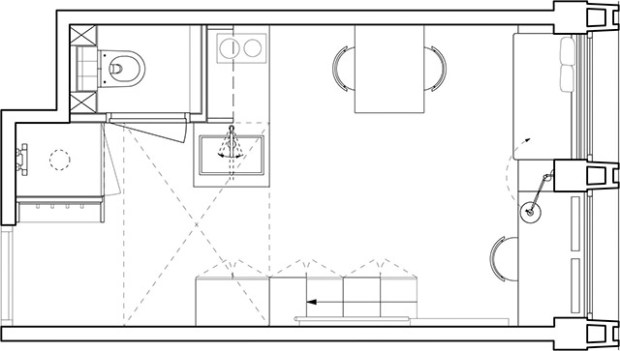
218 studios, 18m², un ancien immeuble de bureaux, l’équation semblait impossible à tenir et pourtant les architectes d’intérieur et les décorateurs de Standard Studio sont parvenus remplir de cahier des charges du programme Erasmus University à Rotterdam. Pour cela, ils ont mis à profit chaque centimètre carré des logements.
Pour y parvenir, la majorité des pièces de mobilier sont à double usages et toute la hauteur de l’appartement est utilisée. Par exemple, on constate que l’espace couchage s’installe en mezzanine, une chambre suspendue où le lit culmine à 2 mètres au dessus du sol. Pour y accéder, l’escalier se mue en armoire, doublant ainsi les fonction et permettant de créer des espaces de stockage sans aucune perte d’espace. Même la rampe d’escalier se mue en étagère dans son prolongement.
De la même manière, l’évier et le lavabo ne sont qu’un seul et même espace, séparée pat un panneau équipé d’un miroir côté salle-de-bain. Un approche très astucieuse !
Toujours dans la même recherche de fonctionnalités multiples, le bureau se prolonge sous la fenêtre pour offrir un canapé et de nombreux caissons de rangement.
Du côté des matériaux et des coloris, ce sont le bambou et la couleur blanche qui ont été privilégiés, les couleurs clairs permettant d’agrandir visuellement l’espace tout en favorisant la luminosité.
Conseils et astuces déco :
- Dans un petit espace, il faut dans la mesure du possible chercher la double fonctionnalité. Ici les exemples sont multiples et très bien pensés.
- Dans la même approche de gain de place, misez sur la verticalité.
- Pour donner une impression d’espace à une petite pièces, privilégiez toujours lez couleurs claires.
Retrouvez plus de projets d’aménagement d’appartements en visitant nos archives.
Un commentaire