Le duo d’architectes formé par Pablo Rebelo et Pedro Pita, fondateurs du studio portugais Pablo Pita Arquitectos vient de livrer le projet « Firmiza » à Porto. Un appartement qui a été totalement rénové et pour lequel l’accent a été mis sur la lumière, un remaniement des espaces et une décoration minimaliste et élégante. Ce que nous avons aimé et nos conseils déco juste après la visite en images :
Le projet :

Photographies : © José Campos
Ce que nous avons aimé :
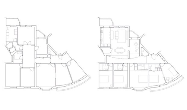
Il suffit d’observer les plans de cet appartement avant/après, pour apprécier le travail colossal qu’ont réalisé les architectes dans ce projet. Le schéma original était totalement fragmenté et confus, dépourvu de cohérence et de hiérarchie dans les différentes successions de pièces.
De nombreues pièces ont donc été supprimées pour élargir les espaces et donner une cohérence à l’appartement. L’appartement a été libéré de presque toutes ses portes. Le choix peut paraître audacieux mais il présente plusieurs avantages. D’une part, la circulation de lumière, qui était l’un des principaux enjeux du projet, est favorisée. D’autre part, avec un partitionnement des espaces très clair, les zones demeurent bien définies. La réponse au besoin d’intimité, s’opère quant à elle à l’aide de rideaux blanc, parfaitement intégrés à la décoration, qu’il suffit de déployer pour fermer les espaces.
Du point de vu de la décoration, les interventions, qu’elle soient sur le plan des coloris ou des matériaux mis en œuvre, jouent la carte de la sobriété et de la luminosité. Un grand comptoir doré agit comme un point central de la pièce à vivre. Il contraste avec la sobriété du reste de la décoration et de la palette de couleur utilisée par les architectes. Le mobilier, essentiellement en bois clair ou laqué de blanc, s’intègre harmonieusement à l’univers épuré mis en place par les architectes. Seule fantaisie « un tapis » qui vient marquer la zone du salon. Un projet que nous avons beaucoup apprécié, mais auquel nous aurions aimé voir ajoutées quelques notes plus colorées, un tableau, des luminaires, de petits objets de décoration qui auraient pu rendre l’ensemble encore plus vivant sans pour autant briser la sérénité qui se dégage de ce projet de rénovation.
Conseils et astuces déco :
- Il n’est pas nécessaire de « clore » un espace pour clairement délimiter une zone. En supprimant les portes, vous rendrez l’espace plus lumineux.
- L’idée d’installer un mur rideau, une solution simple, ludique et peu onéreuse pour marquer une séparation d’espace.
- S’il est à utiliser avec parcimonie dans un projet de décoration, le doré est ici particulièrement bien employé. Dans cet espace très sobre, il vient agir comme un signal et apporte une belle dose d’originalité.
Retrouvez plus de projets d’appartements en visitant nos archives.