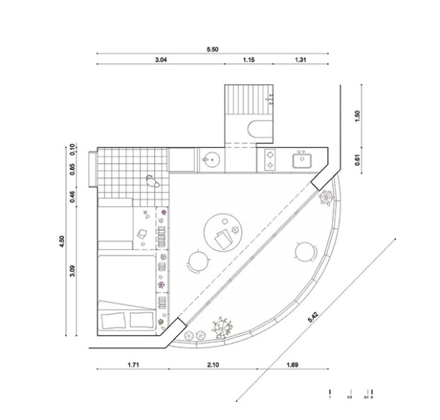
En route pour Bueno Aires en Argentine pour découvrir un projet qui nous a particulièrement séduit. Ce studio de seulement 18m² est un modèle d’aménagement où la lumière devient le principal élément de décoration. Ce projet est né du fractionnement d’une habitation des années 50 en plusieurs appartements. Celui qui nous intéresse se situe au premier étage à l’angle de la rue, et ce sont les architectes et architectes d’intérieur d’IR Arquitectura qui se sont chargés du projet. L’accent a été mis sur l’ouverture sur l’extérieur et le travail avec un plan triangulaire. Pour cela, les architectes ont créé un balcon circulaire revêtu d’une délicate structure perforée blanche, ressemblant à une vague. Ce que nous avons aimé et nos conseils déco juste après la visite en images :
Le projet :

Ce que nous avons aimé :
Nul doute que la sensation d’espace dans ce petit appartement est accentuée par l’ajout de ce balcon de 7 mètres carrés. Paré d’un bardage blanc perforé, le balcon est séparé de l’appartement par des portes fenêtres. Cette peau blanche semi-transparente, laisse pénétrer la lumière et son plafond vitré ouvre les vues sur la cime des arbres voisins. En hiver, il sert de piège thermique pour chauffer l’appartement.
A l’intérieur, le résultat est tout aussi spectaculaire. La cuisine et la buanderie sont totalement intégrées dans un meuble qui permettent de les dissimiler totalement. Cet élément de menuiserie renferme par ailleurs une porte secrète qui permet d’accéder à la salle de bain. La chambre et le coin bureau s’installent sur une plate-forme surélevée, ce qui permet de créer une intimité par rapport au reste la pièce à vivre. Protégés par des rayonnages ouverts remplis de plantes, de livres et d’objets de décoration, ces espaces restent partiellement ouverts et profitent de la lumière naturelle tout en offrant un espace isolé.
Le centre de la pièce est occupé par la pièce à vivre. Il se module en fonction des besoins de l’occupant, et profite du balcon. Les notions de stockage et de rangement sont reines dans les petits appartement, et celui-ci ne déroge pas à la règle. Chaque centimètre carré d’espace est utilisé, des armoires suspendues aux faux plafonds, utilisés comme débarras.
Conseils et astuces déco :
- Dans un petit espace, il est intéressant de créer des semis-séparations entre l’espace nuit et la pièce à vivre. Cela renforce le sentiment d’espace tout en offrant l’intimité nécessaire.
- Encastrer les éléments techniques comme la cuisine ou la machine à laver est une excellente idée dans un studio. Il suffit de fermer ou d’ouvrir le mobilier pour transformer totalement la typologie de l’espace et l’adapter à ses besoins.
- Dans un petit appartement, il faut à tout prix éviter de surcharger l’espace. La palette de couleurs et de matériaux employée ici est très simple et efficace. Optez pour du blanc, du gris clair, du bois brut et des plantes vertes pour des notes colorées!
Et vous, qu’en pensez-vous ?
Des idées, des remarques, des commentaires… N’hésitez à pas à nous en faire part! Pour consulter les autres articles de ce blog dédié à la décoration et au design d’espace, vous pouvez utiliser les catégories ou les mots clés indiqués ci-dessous.
Retrouvez plus de projets de rénovation et d’aménagement d’appartements en visitant nos archives.
Superbe, ingénieux et tellement lumineux ! C’est un appartement vraiment charmant 🙂