Basée à Vancouver, la Mint Tiny House Company est une entreprise spécialisée dans la fabrication de Tiny House. Le choix de vivre dans ces petites habitations sur roues est un mouvement social et architectural qui prône la simplicité volontaire et souvent un retour au plus près de la nature. Avec la « Napa Tiny House« , les canadiens sont parvenus à créer un environnement et une décoration très soignés, bien loin de ce qu’on trouve habituellement dans un camping car classique. Un espace qui devrait vous faire changer de regard sur ces petites habitations, et pourquoi pas vous donner des idées pour les vacances ! Ce que nous avons aimé et nos conseils déco juste après la visite en images :
Le projet :

Ce que nous avons aimé :
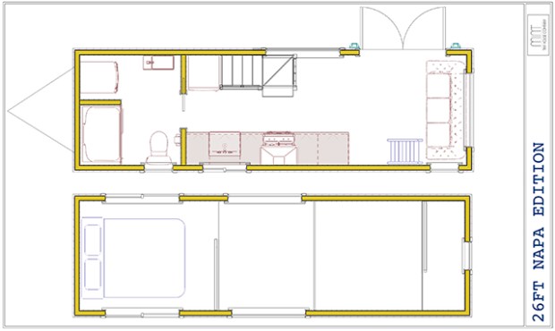
C’est surtout l’élégance de la décoration qui nous a séduit dans ce projet. Ici nous sommes bien loin des standards du genre. Ce qui distingue vraiment cette petite maison destinée à deux personnes des autres maisons nomades, c’est son intérieur chaleureux et fonctionnel.
De l’extérieur, elle est revêtue d’un bardage en bois de cèdre et surmontée d’un toit en métal. À l’intérieur, de grandes fenêtres ouvrent l’espace, qui est aménagé de panneaux muraux en pin blanc ou en pin naturel.
Et vous, qu’en pensez-vous ?
Des idées, des remarques, des commentaires… N’hésitez à pas à nous en faire part! Pour consulter les autres articles de ce blog dédié à la décoration et au design d’espace, vous pouvez utiliser les catégories ou les mots clés indiqués ci-dessous.
Retrouvez plus de projets de maisons en visitant nos archives.