
Direction l’Italie et plus précisément dans le quartier de Testaccio à Rome où le studio d’architecture Strato a livré la « Tuscan Red House« . Les architectes d’intérieur Martino Fraschetti et Vincenzo Tattolo ont totalement rénové l’espace en préservant le charme d’origine.
Le projet :
C’est dans un quartier historique de Rome que cet appartement a été totalement rénové. En conservant certains éléments de l’ancien, tels que les carreaux de ciment, les architectes réalisent le tour de force de proposer un environnement contemporain emprunt de traditions italiennes.
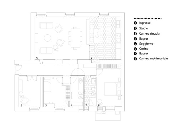
La distribution des espaces est très simple dans ce projet, d’un côté les pièces à vivre avec le salon salle à manger et la cuisine, de l’autre deux chambres avec leur propre salle-de-bain, et un espace parental à l’écart disposant lui aussi de sa propre salle d’eau.
Les aménagements intérieurs sont relativement simples et sobres, peu nombreuses, les pièces de mobilier remplissent leur fonction sans envahir l’espace, et participent par leur alternance d’ancien et de moderne à renforcer l’ambiance globale de l’appartement.
Ce que nous avons aimé et nos conseils déco juste après la visite en images :

Photographies : Serena Eller
Ce que nous avons aimé :
De ce projet ressort plusieurs éléments intéressants à souligner. Il s’agit d’une rénovation classique mais réalisée d’une manière sobre et intelligente. Les espaces sont ici clairement définis, tout comme les circulations. Quasi exclusivement blancs, les murs s’offrent des touches colorées à chaque ouverture, ce qui a pour effet de rythmer cet intérieur en lui apportant du peps.
Les différentes pièces jouissent de leur propre ambiance, de la cuisine colorée pour ne pas dire bigarrée, aux chambres très classiques mais décorées avec soin, chaque zone propose sa propre ambiance.
Conseils et astuces déco :
- Nous aimons particulièrement ces notes de couleurs signalant les différents passages ouverts dans l’appartement. Non seulement ils envoient des signaux forts et définissent clairement les espaces, mais permettent en outre d’ajouter un touche colorée idéale pour répondre à la blancheur immaculée des murs.
- Une alternance de mobilier elle aussi très intéressante, mêler le traditionnel et le contemporain sans s’enfermer dans un style permet souvent de créer un espace chaleureux.
Retrouvez plus de projets d’appartements en visitant nos archives.
Je suis fan !!