
L’équipe d’architectes et d’architectes d’intérieur de l’Atelier Data a rénové cet appartement aux allures de maison. Situé au sommet d’un immeuble, cet espace de deux étages avec une immense pièce à vivre qui s’ouvre sur une terrasse verdoyante et accueillante. Ce que nous avons aimé et nos conseils déco juste après la visite en images :
Le projet :
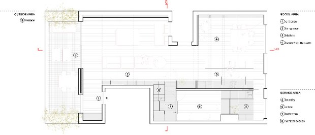
Un des grands enjeux de cette rénovation était de faire pénétrer un maximum de lumière naturelle dans l’appartement. Par ailleurs, il fallait mettre en valeur la grande terrasse donnant sur un jardin en contrebas. L’équipe d’architecte a fait le choix de consacrer l’intégralité de l’étage inférieur (environ 180 m²) aux espaces conviviaux et le dernier étage aux espaces privés. Cependant, la zone de l’étage inférieur s’organise le long d’un mur entier de 11,5 mètres bardé de panneaux mobiles qui permettent de créer des zones semi-privées. Ces panneaux blancs dissimulent la table de cuisson et les rangements de la cuisine. Le mur se transforme ensuite en étagère en bois ouverte avant d’atteindre le salon A l’étage trois chambres et deux salles de bains se partagent l’espace et reçoivent beaucoup de lumière par le biais de puits de lumières.

Photographies : © Richard John Saymour
Ce que nous avons aimé :
Tout d’abord, c’est bien cette longue paroi blanche qui court sur tout un pan de mur qui nous a enthousiasmé. Cela crée un cadre soigné et minimal pour le salon, qui est par ailleurs parsemé d’oeuvres d’art dans des nuances audacieuses d’orange et de vert. Des couleurs que l’on retrouve sur la terrasse extérieure adjacente, où les chaises vertes s’invitent au milieu de la végétation, mais aussi dans les sièges orange et translucides de la salle à manger. Le long du plafond, des poutres blanches massives ont été peintes en blanc pour unifier l’espace. Des murs blancs et des planchers de bois chauds sont présents dans tout l’appartement, comme pour créer une cohérence entre les différentes parties de cet appartement.
Conseils et astuces déco :
- Proposer des rangements qui courent sur l’intégralité d’un mur offre plusieurs avantages : cela unifie l’espace, et permet des créer de nombreuses zones de stockage dissimulées.
- Lorsque votre appartement ou votre maison dispose d’une terrasse, il est souvent payant de limiter au maximum les entraves, qu’elles soient physiques ou visuelles, afin que l’extérieur communique harmonieusement avec l’intérieur.
- Une décoration très sobre est sublimée par quelques touches plus pop et colorées. On apprécie particulièrement ici les chaises orange et les œuvres d’art qui se mêlent harmonieusement à l’environnement très épuré.
Retrouvez plus de projets d’appartements et de maisons en visitant nos archives.