A Barcelone, les architectes du Studio P10 et Miel Arquitectos viennent de collaborer pour rénover et réaménager ce superbe appartement de 65m². L’idée principale de leur travail a été de créer une boite totalement miroitée au centre de l’appartement, qui semble se multiplier dans un jeu de reflets et de perspectives permanent ! Ce que nous avons aimé et nos conseils déco juste après la visite en images :
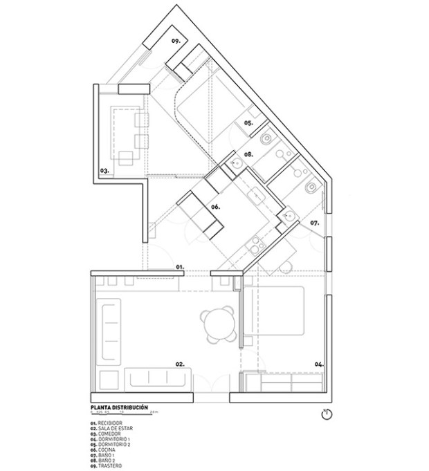
Le projet :

Photographies : © José Hevia et Asier Rua
Ce que nous avons aimé :
Un espace qui semble se multiplier, créant perpétuellement de nouvelles perspectives. Voici ce qu’ont réalisé les architectes en charge du projet. Avant l’intervention, la lumière ne pénétrait que timidement dans cet appartement, elle a donc été au centre du travail d’aménagement.
Pour favoriser le passage et la circulation de lumière naturelle, ils ont décidé d’enfermer les pièces qui pouvaient se passer de lumière naturelle (salle de bains et cuisine) dans un cube bardé de miroirs. L’idée lumineuse (c’est le cas de le dire) étant que les parois de cette boite ne sont jamais parallèles aux murs de l’appartement. Cette donnée fait que jamais, les reflets ne semblent conventionnel. Ils offrent en permanence de nouvelles perspectives, de nouvelles vues, déforment l’espace, l’agrandissent.
Si le résultat est insolite et presque hypnotique, il semble malgré tout compliqué de s’imaginer vivre dans un tel espace au quotidien.
Sur le plan de la décoration, un sol de parquet sombre dialogue avec le plafond, renforçant s’il en était besoin l’effet miroir. Les murs blancs immaculés apportent une touche reposante dans cette décoration qui dissémine des notes dorées sous forme de renforts structurels, de poignées, de commutateurs…
Conseils et astuces déco :
- Concevoir l’ensemble d’une décoration intérieure à partir d’une seule idée forte
- Modifier la perception d’un petit espace en en brouillant les limites avec des miroirs
- Une palette de couleurs luxueuse et reposante à la fois, du bois sombre, du blanc et des touches de doré
Et vous, qu’en pensez-vous ?
Des idées, des remarques, des commentaires… N’hésitez à pas à nous en faire part! Pour consulter les autres articles de ce blog dédié à la décoration et au design d’espace, vous pouvez utiliser les catégories ou les mots clés indiqués ci-dessous.
Retrouvez plus de projets d’appartements en visitant nos archives.