L’architecte grec Stamatios Giannikis vient de rénover un appartement dans la ville portuaire de Thessalonique, en Grèce. Pour rendre hommage à l’atmosphère de la cité, l’architecte a utilisé dans sa décoration des couleurs très vive, rappelant l’environnement de sa région. Ainsi, l’appartement se pare de rose, de bleu et de vert qui marquent et délimitent chacune des zones fonctionnelles de cette habitation située dans un bâtiment historique construit en 1937. Ce que nous avons aimé et nos conseils déco juste après la visite en images :
Le projet :

Photographies : © Kim Powell
Ce que nous avons aimé :
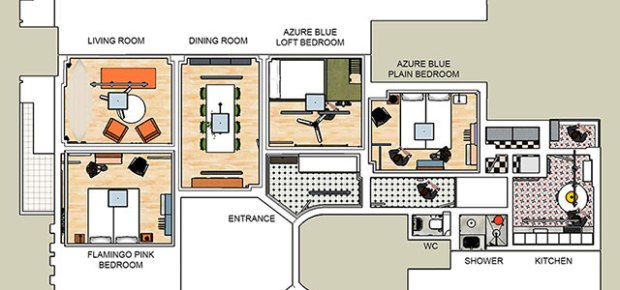
120m² de couleurs, il fallait oser et c’est une réussite. Bien que la disposition de l’appartement n’ait pas été modifiée lors de la rénovation, l’architecte a su partitionner l’espace et créer des ambiances variées, notamment en donnant une couleur à chaque espace. Ainsi, les parties communes comme le salon, la salle-à-manger et la chambre d’amis se parent d’un rose, la chambre principale et celle à mezzanine de bleu, et les salles d’eau de verre pastel.
Dans cette rénovation, l’architecte a aussi su conserver les accessoires art-déco d’origine, tels que le sol, les encadrements de portes et fenêtres en bois massif et les moulures en plâtre orné du plafond. Cela créé un contraste intéressant avec toutes ces couleurs. Dans la cuisine, les armoires vert pastel aux lignes épurées ont été installées et fonctionnent particulièrement bien avec le sol en dalles de ciment géométriques rouges et noirs.
L’architecte grec a choisi trois couleurs pour organiser l’espace. Le rose est utilisé dans les espaces qui font face à la mer, le bleu azur est utilisé dans les espaces qui donnent sur le quartier et la couleur vert pastel est utilisée dans les espaces humides de l’appartement, tels que la cuisine, la salle de bain et les toilettes. En outre, pour permettre plus de flexibilité, le choix du mobilier s’est porté sur des pièces légères, empilables et pliables qui peuvent être utilisés dans diverses configurations et peuvent être facilement retirés et rangés lorsqu’ils ne sont pas utilisés. Si ce sont les couleurs qui frappent, le mobilier se fait quant à lui plus discret (et heureusement sinon le résultat aurait été indigeste).
Conseils et astuces déco :
- Décliner un même parti-pris coloré dans l’ensemble d’un lieu.
- Un transat à l’intérieur dans un coin lecture ?
- Attention toutefois, cette appartement est très beau, mais à la longue, peut être fatiguant pour l’esprit non?
Et vous, qu’en pensez-vous ?
Des idées, des remarques, des commentaires… N’hésitez à pas à nous en faire part! Pour consulter les autres articles de ce blog dédié à la décoration et au design d’espace, vous pouvez utiliser les catégories ou les mots clés indiqués ci-dessous. Retrouvez plus de projets d’appartements en visitant nos archives.
C’est vrai que c’est flashy, surtout le orange/rose ! Le bleu et le vert sont assez relax je trouve. Pas mal d’avoir mis le plan, plus facile a s’y retrouver 🙂