La firme de Montréal, Ménard Dworkind architecture & design vient d’imaginer la décoration intérieur du restaurant Miss Wong, à Laval au Canada. Pour cela, les architectes d’intérieur se sont inspirés des marchés dans les villes chinoises, installant néons et suspensions pour créer une atmosphère fourmillante de vie et cosy à la fois. Un immense espace de 930 mètres carrés avec des plafonds de 7 mètres de haut qui plonge le visiteur dans un univers riche en détails et en vie. Ce que nous avons aimé et nos conseils déco juste après la visite en images :
Le projet :

Photographies : © David Dworkind
Source
Ce que nous avons aimé :
L’architecte et photographe canadien, David Dworkind, et son partenaire, le designer Guillaume Ménard, ont développé une image très claire de l’ambiance qu’ils souhaitaient créer pour l’intérieur du restaurant Miss Wong. La grande originalité de ce projet est l’approche axée sur les détails, où chaque élément s’harmonise avec la trame centrale. Pour réaliser ce projet, ils ont su se plonger dans l’imaginaire collectif : comment imaginons nous un quartier d’Asie qui ne dort jamais ?
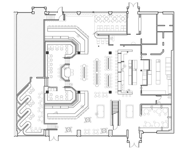
Néons, bois précieux, lampions suspendus et lumière tamisée, voilà la recette des architectes pour ce projet. Il ont mis en place un véritable cheminement pour l’utilisateur qui pénètre dans le restaurant en passant sous une arche de bois. Un espace comprimé qui s’ouvre sur la partie principale du restaurant, un immense espace de 930 mètres carrés avec des plafonds de 7 mètres de haut. Le contraste est saisissant. Cette zone centrale est illuminée par 6 grands néons et différents caissons lumineux qui annoncent des échoppes fictives. De petites lampes suspendues, complètent cette atmosphère aux allures de marché de rue.
La zone principale est entourée de quatre espaces. Ces zones sont plus petites et plus intimes. Chacune d’elle possède ses propres caractéristiques, ce qui permet aux visiteurs de vivre une expérience différente en fonction de l’emplacement de sa table.
Un savoureux jeu entre tradition et modernité, mêlant des matériaux et teintes naturels d’une part, et d’imposants néons colorés.
Conseils et astuces déco :
Il est difficile de livrer des conseils à proprement parler en se basant sur ce lieu si particulier. Une chose est certaine, les architectes sont allés au bout de leur idée et le résultat est très enthousiasmant, signe qu’il est parfois bon de ne pas faire de concession en matière de décoration !
Et vous, qu’en pensez-vous ?
Des idées, des remarques, des commentaires… N’hésitez à pas à nous en faire part! Pour consulter les autres articles de ce blog dédié à la décoration et au design d’espace, vous pouvez utiliser les catégories ou les mots clés indiqués ci-dessous.
Retrouvez plus de projets de restaurants en visitant nos archives.