Pour bien reprendre l’année sur Conseils Déco, nous vous emmenons aujourd’hui à Barcelone pour découvrir ce projet de réhabilitation de l’architecte espagnol Román Izquierdo Bouldstridge. Une intervention d’architecture intérieur et de décoration qui consiste à transformer un appartement datant de 1880 en deux lofts distincts. A travers une succession de pièces qui relient la rue à la cour par un système de portes coulissantes en bois, l’architecte développe une décoration très verdoyante et naturelle qui s’inspire de la maison traditionnelle japonaise. Ce que nous avons aimé et nos conseils déco juste après la visite en images :
Le projet :

Photographies : © Adrià Goula
Ce que nous avons aimé :
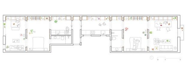
L’habitation d’origine était totalement cloisonnée par des couloirs et des pièces sans réelle continuité. Le premier objectif était donc d’ouvrir l’espace en démolissant les cloisons, les planchers et les plafonds existants. Cette intervention permettait immédiatement de favoriser l’éclairage naturel et la ventilation de l’espace. Avec cette modification structurelle, une nouvelle perspective de 23 mètres de long traverse l’espace de la rue à la cour, donnant lieu à une succession de seuils et de pièces connectées sur l’extérieur pour augmenter la profondeur visuelle de ces habitations.
Avec de nombreuses portes de bois coulissantes, la composition des appartement apparaît alors comme dynamique et les pièces peuvent être complètement, partiellement ou non reliées les unes aux autres. Lorsque les portes sont fermées, chaque pièce est une entité en soi, tandis que lorsqu’elles sont ouvertes, chaque pièce est une entité à part et autonome. Sur le plan des rangements, une structure d’étagères court sur toute la longueur de l’espace, avec un système de rayonnage qui offre différentes fonctions au fil des pièces. Penderie, meuble télévision, grand banc, bibliothèque…
Les murs et les plafonds peints en blanc, ainsi que le sol continu en béton poli, forment l’enveloppe d’une habitation élégante où la lumière est omniprésente. L’espace pourrait être résumé à une succession de boîtes blanches perforées qui s’ouvrent et se referment selon les besoins.
Les plantes suspendues et au sol, en harmonie avec les éléments en châtaignier, forment une atmosphère très naturelle qui vient contrebalancer la sobriété des murs blancs et du sol de béton. En même temps, la présence de ces plantes améliore la qualité de l’air intérieur et régule l’humidité.
Conseils et astuces déco :
- Dans un espace étroit, veillez à créer de larges ouvertures pour augmenter la profondeur de champs.
- Si vous optez pour du bois dans votre projet d’aménagement, placez de nombreuses plantes vertes. Elles vont dialoguer avec les matériaux inertes pour créer une belle complicité.
- On adore la modularité du système de rangement qui s’adapte à chaque pièce tout en créant une continuité dans les espaces tout en longueur.
Et vous, qu’en pensez-vous ?
Des idées, des remarques, des commentaires… N’hésitez à pas à nous en faire part! Pour consulter les autres articles de ce blog dédié à la décoration et au design d’espace, vous pouvez utiliser les catégories ou les mots clés indiqués ci-dessous.
Retrouvez plus de projets d’appartements en visitant nos archives.