Composé d’architectes et de designers industriels, Estudio Atemporal est basé dans la ville de Mexico. Ils ont récemment remanié et rénové une ancienne usine de la ville pour la transformer en espace de co-working contemporain, fonctionnel et modulable. Un très beau projet où le neuf et l’ancien cohabitent à merveille, tirant habillement parti l’un de l’autre. Ce que nous avons aimé et nos conseils déco juste après la visite en images :
Réhabilitation
Un appartement transformé en bureaux pour des architectes

Si nous vous présentons régulièrement des projet de bureaux ou d’entrepôts transformés en habitations, il est bien plus rare de voir le chemin inverse. C’est pourtant ce que viennent de réaliser le duo formé d’Andrey Andreev et Petya Nikolova, les fondateurs d’Another Studio. Ils ont réussi à remodeler un ancien appartement en bureau où les marqueurs d’un espace de travail ont été adoucis. « Another Space » est donc une création de bureaux dans un ancien appartement d’habitation qui parvient à réutiliser astucieusement de nombreuses composantes pour en faire un espace de travail particulièrement chaleureux et joyeux, un peu comme à la maison. Ce que nous avons aimé et nos conseils déco juste après la visite en images :
Le projet :
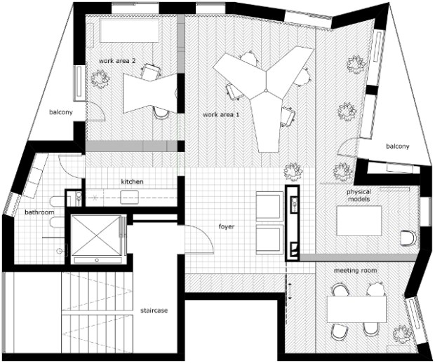
C’est pour y installer ses propres bureaux qu’Another Studio a repensé cet appartement d’habitation d’environ 120 m². La première intervention pour procéder à cette mue, fut de démolir la quasi intégralité des murs porteurs. Pour contrebalancer ces ouvertures, les architectes ont aménagés bibliothèques ouvertes, vitrages, portes coulissantes et rideaux blancs pour définir les espaces. L’idée est de séparer les différentes zones tout en conservant des connexions visuelles. On retrouve cette idée dans les revêtements de sol qui s’alternent sans transition.
Les bureaux se composent de 2 zones d’open space avec chacune 7 à 8 postes de travail, un coin pour installer les maquettes des projets, une salle de réunion, une petite cuisine, une salle de bains et 2 terrasses. Pour favoriser l’émulation et les échanges entre les collaborateurs, les architectes ont imaginé un grand bureau central de type îlot et composé de 3 modules, assemblés en forme de Y. Sa taille, sa forme et sa position propose un espace de travail très convivial et fonctionnel pour une équipe de 6 personnes.

Photographies : © Another Studio
Ce que nous avons aimé :
Briser des murs porteurs, certes c’est une bonne idée pour gagner en flexibilité et en profondeur, mais par quoi les remplacer ? L’idée des architectes était alors de créer des séparations soit amovibles telles que les rideaux, les portes coulissantes, soit de créer des séparations ouvertes. La grande bibliothèque laisse par exemple les perspectives partiellement ouvertes et contient des éléments qui peuvent être retirés et utilisés comme tables d’appoint ou tabourets.
Pour rester dans cette volonté de partitionnement doux, les revêtements de sol s’alternent pour marquer les circulations et zones. Le parquet en chêne disposé dans différents motifs répond alors aux carreaux de céramique d’inspiration portugaise que l’on retrouve aussi dans le coin cuisine et la salle de bain.
Concernant les matériaux utilisés dans ce projet, on notera le beau mariage de contreplaqué de pin avec le métal peint en noir des meubles, et contrebalancé par la douceur des tissus de coton blanc. Les éclairages sont disposés en suspension au dessus des postes de travail et de nombreuse plantes viennent apporter une touche végétale très appréciable.
Conseils et astuces déco :
- Qu’il s’agisse d’un projet de bureau ou d’une habitation, avoir un espace ouvert ne signifie pas forcément un espace vide. Au contraire, la définition des espaces est primordiale pour ne pas être confronté à une impression de vide, et la solution qui consiste à une bibliothèque ou des étagères est très intéressante. Elle offre la possibilité de conserver les vues et perspective tout en définissant les zones et les circulations.
- De même, l’alternance de revêtement de sol participe à la réussite de ce projet en créant des parcours.
- Enfin, le choix des matériaux et couleurs de ce projet est très bien pensé, le pin, le métal noir et les voilages blanc créées un ensemble bien adapté à la vie de bureau tout en y ajoutant un style informel et décontracté.
Retrouvez plus de projets de bureaux en visitant nos archives.
Transformation d’un ancien entrepôt en maison moderne à Londres
Parce que l’on est jamais mieux servi que par soi-même, le meilleur projet pour un architecte d’intérieur ou un décorateur est souvent le sien. Ainsi, l’architecte James Davies, fondateur de son propre studio « Paper House Project », a dessiné et aménagé sa petite maison dans un immeuble abandonné à Hackney au cœur de Londres. En ne conservant que la structure du bâtiment, l’architecte a pu jouer avec des espaces double hauteur, s’aménager une cour intérieur, et bien d’autres interventions audacieuses qui nous ont fait tomber sous le charme. Ce que nous avons aimé et nos conseils déco juste après la visite en images : (suite…)
Une ancienne école transformée en loft à Amsterdam

Direction Amsterdam pour découvrir le bâtiment Ons Drop, une ancienne école réhabilitée et transformée en appartements familiaux. Celui que nous vous proposons de visiter aujourd’hui est l’œuvre de Standard Studio et CASA architecten. Aménagé pour 5 personnes, il prend les allures d’un loft lumineux et intime par endroit. Ce que nous avons aimé et nos conseils déco juste après la visite en images :
Une ancienne brasserie transformée en appartements

Aujourd’hui direction la Pologne où le studio d’architecture et d’architecture d’intérieur de Varsovie Projekt Praga a réhabilité et totalement transformé les locaux d’une ancienne brasserie pour y aménager des appartements dans le cadre d’un projet d’appart-hôtel. Une rénovation très ambitieuse au résultat épuré à l’extrême et très élégant. Ce que nous avons aimé et nos conseils déco juste après la visite en images :